- Woonoppervlakte
- Circa 149 m²
- Perceeloppervlakte
- Circa 293 m²
- Bouwjaar
- Gebouwd in 1975
- Aantal kamers
- 5 kamers (4 slaapkamers)
Deze royale twee-onder-een-kapwoning biedt verrassend veel leefruimte en is ideaal voor wie comfortabel wil wonen met nét dat beetje extra. Naast de sfeervolle woonkamer en de halfopen keuken beschikt de woning op de begane grond namelijk ook over een grote tuinkamer. Dankzij het zonwerende glas en de gezellige gaskachel is dit een heerlijke plek om het hele jaar door van te genieten. Op de eerste verdieping vind je drie ruime slaapkamers, waarvan één met een royale inloopkast. De nette badkamer is voorzien van een moderne inloopdouche met glazen wand. Een vaste trap leidt naar de zolder met een vierde slaapkamer en veel bergruimte. De onderhoudsvriendelijk aangelegde achtertuin biedt volop mogelijkheden om meerdere zitplekken te creëren, zowel in de zon als in de schaduw. Ideaal voor lange zomeravonden of rustige koffiemomentjes. Achter de woning ligt bovendien een garage, waar eventueel een auto binnen geplaatst kan worden, met eigen oprit.
ALGEMEEN:
Deze fijne woning ligt in een rustige en kindvriendelijke woonwijk op loopafstand van het centrum van Meijel waar zich diverse winkels, supermarkten, restaurants, terrasjes en de basisschool bevinden. De woonwijk is kindvriendelijk ingericht want direct om de hoek ligt een leuke speeltuin en ook loop je binnen enkele minuten al het buitengebied in. Meijel ligt erg gunstig ten opzichte van meerdere grote steden. In minder dan 15 autominuten rij je naar de A67 richting Eindhoven en Venlo/Duitsland en de A2 naar Zuid-Limburg.
BEGANE GROND:
ENTREE
Via een pad door de voortuin bereik je de voordeur van deze fijne woning. Eenmaal binnen kom je in de hal terecht, waar direct aan de linkerkant de toiletruimte ligt, voorzien van een fonteintje en een raampje voor natuurlijke ventilatie. Naast de trap bevindt zich de meterkast, inclusief aansluiting op het glasvezelnetwerk wat ideaal voor snel internet. Onder de trap vind je bovendien een praktische trapkast, perfect voor het opbergen van schoenen, provisie of schoonmaakspullen. Op de gehele begane grond ligt een mooie laminaatvloer die niet alleen goed bestand is tegen slijtage maar ook praktisch is in het onderhoud.
KEUKEN
Deze praktisch ingedeelde keuken is van alle gemakken voorzien. De kastjes in landelijke stijl combineren mooi met het kunststof werkblad en de achterwand in houtlook, wat zorgt voor een gezellige en tijdloze uitstraling. De keuken beschikt over een vierpits gasfornuis met afzuigkap en glazen spatwand, een oven, combi-magnetron, vaatwasser en een koelkast, alles wat je nodig hebt om de lekkerste gerechten te bereiden. Aan de rechterzijde van de keuken is er volop ruimte voor een royale (vitrine)kast die gelijk voor extra opbergruimte zorgt. Via de charmante toog kom je uit in de tuinkamer, wat zorgt voor een fijne verbinding met de rest van de woning.
WOONKAMER
De woonkamer is een heerlijke leefruimte met volop daglicht dankzij de grote ramen aan zowel de voor- als achterzijde van de woning. Beide zijn voorzien van draaivensters, wat zorgt voor een prettige ventilatie. Aan de zijkant van de woning is daarnaast nog een horizontaal raam geplaatst, waardoor er nog meer licht naar binnen komt.
De ruimte is royaal opgezet en biedt meer dan genoeg plek voor een grote eettafel waar je met de hele familie kunt genieten van een maaltijd of een gezellig spelletje. Ook een grote (hoek)bank past hier moeiteloos, en dan blijft er zelfs nog ruimte over voor bijvoorbeeld een knus speelhoekje of een werkplek.
TUINKAMER
De tuinkamer is een waardevolle uitbreiding van de woning en biedt volop extra leefruimte. Dankzij het zonwerende glas is dit een comfortabele plek om het hele jaar door van te genieten, lekker koel in de zomer en behaaglijk in de winter. De gezellige gaskachel zorgt voor extra sfeer en warmte, waardoor het hier ook op koudere dagen heerlijk vertoeven is. De dubbele schuifpui naar de tuin maakt het mogelijk om binnen en buiten op een fijne manier met elkaar te verbinden. Of je deze ruimte nu gebruikt als tweede zitkamer, speelkamer, thuiswerkplek of tuingerichte eetkamer, het kan hier allemaal!
VERDIEPING:
Op de eerste verdieping vind je drie slaapkamers en de badkamer.
SLAAPKAMERS
Van de drie slaapkamers zijn er twee bijzonder ruim en profiteren van een royale raampartij met drie ramen, waarvan er twee voorzien zijn van een handige draaikiepfunctie. Hierdoor komt er veel daglicht naar binnen en kun je goed ventileren. De derde slaapkamer is ook van een mooi formaat en beschikt over een praktische muurkast die zorgt voor extra bergruimte en een opgeruimde kamer. De ouderslaapkamer beschikt over een inloopkast, gerealiseerd in de voormalige vierde (kleinere) slaapkamer. Deze handige extra ruimte is voorzien van een raam met draaikiepfunctie. Alle ramen op de bovenverdieping zijn circa twee jaar geleden vervangen door onderhoudsarme kunststof kozijnen met HR++ glas, wat bijdraagt aan een goede isolatie en een strakke uitstraling. Op de overloop en in alle slaapkamers ligt een nette vinylvloer.
BADKAMER
De badkamer is compact, maar slim en stijlvol ingericht. De inloopdouche heeft een glazen scherm en de wastafel is voorzien van een praktisch meubel met lades, ideaal voor het opbergen van dagelijkse benodigdheden. Daarnaast is er nog een extra kastje geplaatst voor nog meer opbergruimte. Het wandtoilet en de designradiator maken de ruimte compleet. Qua afwerking is gekozen voor een donkere tegelvloer en achterwand van de douche en toilet terwijl de overige wanden zijn afgewerkt met frisse, witte wandtegels. Dit zorgt voor een tijdloze en rustige uitstraling. De badkamer is voorzien van mechanische ventilatie die automatisch inschakelt zodra je de lamp aandoet.
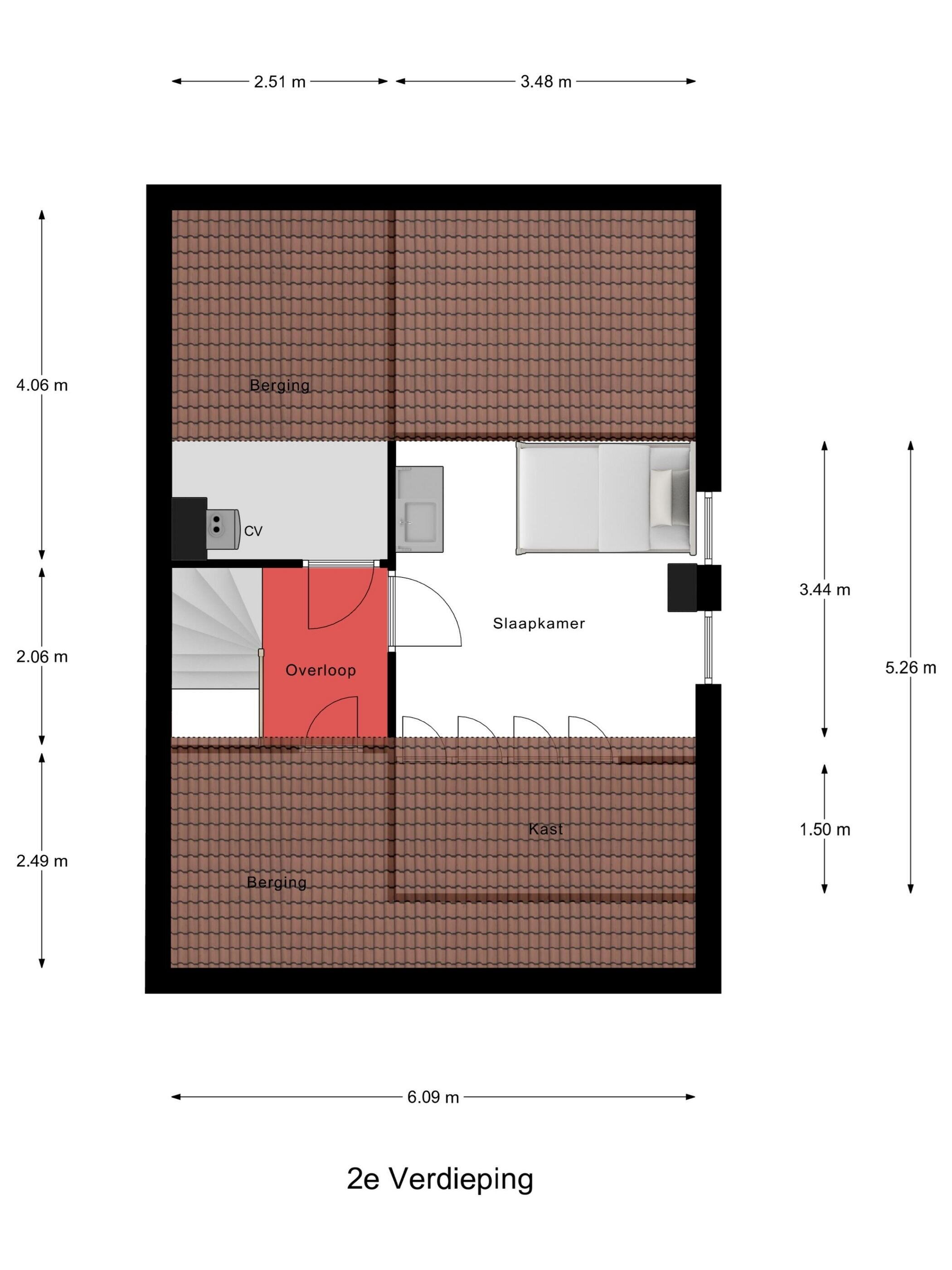
ZOLDER:
De zolder is bereikbaar via een vaste trap en biedt veel mogelijkheden. Aan de linkerkant van de overloop bevindt zich de technische ruimte met de Nefit Topline CV-ketel. Aan de rechterzijde is praktische opbergruimte gecreëerd, ideaal voor het netjes opbergen van seizoensspullen of andere benodigdheden.
Daarnaast is op zolder de vierde slaapkamer gerealiseerd, een fijne, lichte ruimte die ook uitstekend dienst kan doen als werkplek of speelkamer. Ook hier zijn twee jaar geleden de ramen vervangen door onderhoudsvriendelijke kunststof kozijnen met HR++ glas. Onder het schuine dak is bovendien extra opbergruimte gecreëerd, slim weggewerkt maar goed bereikbaar.
TUIN:
De tuin is volledig betegeld en daardoor onderhoudsvriendelijk wat ideaal is voor wie geen groene vingers heeft, maar toch wil genieten van een fijne buitenruimte. Met potplanten, bakken of schuttinggroen is de tuin bovendien eenvoudig sfeervol en kleurig aan te kleden.
Een groot pluspunt is dat de tuin ook doorloopt aan de zijkant van de woning, waardoor je volop mogelijkheden hebt voor het creëren van meerdere zitplekken. Of je nu graag in de zon zit of juist liever de schaduw opzoekt, er is altijd een plekje dat past bij jouw moment van de dag.
Via de tuin heb je toegang tot de garage en de oprit. In de garage kun je eventueel een auto binnenplaatsen via de kantelpoort, maar deze ruimte leent zich ook uitstekend als werkplaats en voor het stallen van fietsen en gereedschap. Op de oprit is ruimte voor een auto, maar deze is ook royaal genoeg voor bijvoorbeeld een caravan of aanhangwagen.
OVERIGE INFORMATIE:
AANVAARDING & VOORWAARDEN BIJ VERKOOP:
De aanvaarding geschiedt in onderling overleg.
Financieringsvoorbehoud : 5 weken
Bankgarantie of waarborgsom : vereist
ENERGIELABEL:
Verkoper beschikt over energielabel C.
STAAT VAN ONDERHOUD:
De staat van onderhoud van de woning is goed. Zo’n 10 jaar geleden is de badkamer vernieuwd, enkele jaren geleden zijn er nieuwe laminaatvloeren gelegd en twee jaar geleden zijn alle ramen op de eerste verdieping en de zolder vervangen. De woning is verder netjes bijgehouden en onderhouden waar nodig.
VERWARMING & ISOLATIE:
Verwarming geschiedt door middel van een Nefit CV ketel (2014). In de tuinkamer is bovendien een gashaard aanwezig. De woning is vanuit de bouw geïsoleerd volgens de toen geldende norm.
LIGGING:
De woning ligt in een rustige en kindvriendelijke woonwijk op loopafstand van het centrum met alle voorzieningen.
NUTSVOORZIENINGEN:
De woning is rechtstreeks aangesloten op de openbare leidingen voor water, energie en riool en beschikt over een aansluiting op het kabel- en glasvezelnetwerk.
LIJST ROERENDE ZAKEN & VRAGENLIJST WETTELIJKE INFORMATIEPLICHT:
De lijst van roerende zaken en de vragenlijst wettelijke informatieplicht verkoper(s) zijn te downloaden in de dataroom van de woning.
BOUWKUNDIG ADVIES:
Maison Makelaars adviseert om bij twijfel of bij oudere woningen een onafhankelijk bouwkundig onderzoek in te stellen.
MAATGEVING:
Alle maten en oppervlaktes in de brochure en van alle plattegronden zijn indicatief, hieraan kunnen geen rechten ontleend worden.
Hoewel alle informatie in deze brochure met de grootste zorg wordt samengesteld kunnen wij niet altijd voorkomen dat de informatie enigszins afwijkt van hetgeen dat je in of rond de woning ziet of hebt gezien. Dit geldt met name voor de brochuretekst, de plattegronden en de maatvoeringen. Hieraan kunnen dan ook geen rechten worden ontleend.
Overdracht
- Vraagprijs
- € 365.000 k.k.
- Status
- Verkocht
Bouw
- Object type
- Eengezinswoning, hoekwoning
- Soort bouw
- Bestaande bouw
- Bouwjaar
- 1975
- Soort dak
- Zadeldak bedekt met pannen
Oppervlakte en inhoud
- Woonoppervlakte
- 149 m²
- Perceeloppervlakte
- 293 m²
- Inhoud
- 602 m³
Indeling
- Aantal kamers
- 5 kamers (4 slaapkamers)
- Aantal badkamers
- 1 badkamer en 1 apart toilet
- Badkamervoorzieningen
- Inloopdouche, toilet, wastafel, en wastafelmeubel
- Aantal woonlagen
- 2 woonlagen en een zolder
- Voorzieningen
- Glasvezelkabel, mechanische ventilatie, en rolluiken
Energie
- Energielabel
- C
- Energielabel registratie
- 16-05-2020
- Isolatie
- Dakisolatie, hr-glas en muurisolatie
- Verwarming
- Cv-ketel
- Warm water
- Cv-ketel
- Cv ketel
- Nefit topline (gas gestookt combiketel uit 2014, eigendom)
Buitenruimte
- Tuin
- Achtertuin
- Afmetingen achtertuin
- 78 m² (12,00 meter diep en 6,50 meter breed)
- ligging tuin
- Gelegen op het oosten en bereikbaar via achterom
Garage
- Soort garage
- Aangebouwde stenen garage
- Capaciteit
- 1 auto
Parkeergelegenheid
- Soort parkeergelegenheid
- Op eigen terrein
Actueel energieverbruik
Energielabel deze woning
Energielabel C
Publicatie energielabel: 16-05-2020
Stroomverbruik per jaar
In het Neervelt 6, Meijel
Gasverbruik per jaar
In het Neervelt 6, Meijel
Indicatie hypotheeklasten
Eigen inleg:
Spaargeld / overwaarde
Rente:
Laagste 10-jaars rente
Laagste 10-jaars rente
2,76% - Centraal Beheer Groen... - NHG
2,98% - Centraal Beheer Groen... - 80%
Laagste 20-jaars rente
3,19% - Centraal Beheer Groen... - NHG
3,31% - Centraal Beheer Groen... - 80%
Laagste 30-jaars rente
3,34% - Centraal Beheer Groen... - NHG
3,47% - Centraal Beheer Groen... - 80%
Hypotheek:
Bruto maandlasten: € 0 p/m
Netto maandlasten: € 0 p/m
Hoe berekenen we dit?
Het rentepercentage is gebaseerd op de laagste 10-jaars vaste rente voor één hypotheekdeel. De vermelde rente (2.76% met NHG) is gecontroleerd op 23-09-2025. Deze berekening is gebaseerd op een annuïteitenhypotheek die volledig wordt afgelost, waarbij de maandlasten gedurende de gehele looptijd gelijk blijven. De werkelijke rente en netto maandlasten kunnen variëren, afhankelijk van uw persoonlijke situatie en de hypotheekverstrekker. Raadpleeg een financieel adviseur voor een nauwkeurige berekening en advies. Aan deze berekening kunnen geen rechten worden ontleend; het dient enkel als indicatie.
Documentatie
Kadastrale kaart
Leefomgeving
Plattegronden PDF
WOZ waarderapport
BAG uittreksel
Energielabel-c
Meetrapport
Brochure
Brochure
Bezoek onze website
Bezichtiging
Waardebepaling
Zoekopdracht
Alles downloaden
Zonnegrenzen bekijken
Op de kaart
Inwoners in Meijel
Cijfers voor postcodegebied 5768
- Totaal aantal inwoners
- 6160 inwoners
- Mannen
- 51%
- Vrouwen
- 49%
Inwoners in Meijel
Cijfers voor postcodegebied 5768
- tot 15 jaar
- 14%
- 15 tot 25 jaar
- 11%
- 25 tot 35 jaar
- 21%
- 45 tot 65 jaar
- 31%
- 65 en ouder
- 23%
Huishoudens in Meijel
Cijfers voor postcodegebied 5768
- Eenpersoons zonder kinderen
- 29%
- Meerpersoons zonder kinderen
- 35%
- Huishoudens zonder kinderen
- 64%
Huishoudens in Meijel
Cijfers voor postcodegebied 5768
- Huishoudens met één kind
- 5%
- Huishoudens met meerdere kinderen
- 30%
- Huishoudens met kinderen
- 35%
Woningen in Meijel
Cijfers voor postcodegebied 5768
- Woningen voor 1945
- 9%
- Woningen tussen 1945 en 1965
- 17%
- Woningen tussen 1965 en 1975
- 24%
- Woningen tussen 1975 en 1985
- 12%
- Woningen tussen 1985 en 1995
- 15%
Woningen in Meijel
Cijfers voor postcodegebied 5768
- Woningen tussen 1995 en 2005
- 10%
- Woningen tussen 2005 en 2015
- 10%
- Woningen na 2015
- 3%
- Huurwoningen
- 30%
- Koopwoningen
- 70%
Overige in Meijel
Cijfers voor postcodegebied 5768
- Gemiddelde WOZ waarde
- € 272.000,-
- Personen onder de 65 met uitkering
- 5%
Overige in Meijel
Cijfers voor postcodegebied 5768
- Adressen per km²
- 499
- Stedelijkheid (schaal 1 op 5)
- 20%
Korte feiten over Meijel
Meijel (uitspraakⓘ) (dialect: Mééls) is een kerkdorp en voormalige gemeente in Nederlands-Limburg. De plaats telt 6.495 inwoners (2023). Per 1 januari 2010 maakt Meijel deel uit van de gemeente Peel en Maas.
Indien u vragen heeft of u wilt een bezichtiging inplannen, dan kunt u gebruik maken van het formulier hiernaast. Er zal daarna op korte termijn contact met u worden opgenomen.
Industrieterrein 40
5981 NK, Panningen
077 - 3082 946 ph@maisonmakelaars.nl www.maisonmakelaars.nl/phContact opnemen
Maison Makelaars PH
Maison Makelaars Peel en Maas
Het kopen of verkopen van een woning is een belangrijke stap in je leven, vaak gemotiveerd door persoonlijke redenen. Misschien ben je klaar om je droomwoning te realiseren, of zoek je iets kleiners nu je kinderen zelfstandig wonen. Het is meer dan alleen een transactie; het gaat over het vinden of achterlaten van een plek die 'thuis' voelt.
Dit proces begrijpen we volledig en daarom hechten we veel waarde aan persoonlijke betrokkenheid. Er zijn tal van aspecten die nieuw en overweldigend kunnen zijn. Wij staan voor je klaar om je te helpen, van het eerste gesprek tot de uiteindelijke overdracht bij de notaris. Met ons aan je zijde, hoef je deze weg nooit alleen te bewandelen.
Hadden we al verteld dat wij werken op basis van ‘no cure, no pay’? En dat je een gratis waardebepaling van jouw huis ontvangt? Uiteraard is ook de koffie en thee bij ons gratis; kom je binnenkort een kopje drinken? Maak even een afspraak, dan heeft de makelaar ook zeker tijd voor jou.
Graag tot ziens!
Nieuwste reviews
-
Bosbeeklaan 18
Het was goed geregeld en Tygo mocht zijn eerste huis verkopen. Hij heeft het top gedaan.Nogmaals bedankt.
-
Molenstraat 62
De verkoop heeft even op zich laten wachten, maar eind al goed.Maar met wat geduld, waren er toch liefhebbers. De kopers zijn erg blij met d...
-
Ge Coopmans
Maarten is een makelaar die je bij de hand neemt in het proces van koop of verkoop en niet als zakelijke partij die kijkt ( ipv voelt) hoe d...